Cathédrale de Durham
| Cathédrale de Durham | |
| |
| Présentation | |
|---|---|
| Nom local | The Cathedral Church of Christ, Blessed Mary the Virgin and St Cuthbert of Durham |
| Culte | Anglican depuis 1538 Catholique romain auparavant |
| Type | Cathédrale |
| Rattachement | Diocèse anglican de Durham (siège) |
| Début de la construction | 1093 |
| Fin des travaux | XIIIe siècle |
| Style dominant | Roman normand |
| Protection | |
| Site web | www.durhamcathedral.co.uk |
| Géographie | |
| Pays | |
| Région | Angleterre du Nord-Est |
| Département | Comté de Durham |
| Ville | Durham |
| Coordonnées | 54° 46′ 25″ nord, 1° 34′ 38″ ouest |
| Critères | (ii) (d), (iii) (d) et (iv) (d) |
La cathédrale de Durham (en anglais : The Cathedral Church of Christ, Blessed Mary the Virgin and St Cuthbert of Durham, plus connue sous le nom de Durham Cathedral) est située dans la cité de Durham dans le comté de Durham, en Angleterre. Fondée en 1093, c'est le premier édifice anglais à avoir reçu des voûtes sur toutes ses parties, à être à la fois une abbatiale et une cathédrale, le siège d'un pèlerinage important aux reliques de saint Cuthbert et un point de défense de l'Angleterre face à l'Écosse[1]. Elle est inscrite avec le château de Durham au Patrimoine mondial de l'UNESCO en 1986.
Histoire
Origines

Une légende superstitieuse dont les devises emblématiques sont à l'angle oriental de la cathédrale attribue l'origine de Durham aux moines du diocèse de Lindisfarne fondé vers 635 par saint Aidan sur injonction de Oswald de Northumbrie. Avec les invasions vikings, ils s'enfuient et auraient suivi en 995 deux laitières à la recherche d'une vache sur ce promontoire escarpé surplombant une boucle de la Wear. Ils s'y réfugient avec les reliques de saint Cuthbert et érigent un mausolée pour leur patron. Ayant résolu de s'y fixer, ils construisent des habitations autour des saintes reliques et posent les fondements du DUN-HOLM des Saxons qui, avec le temps s'est changé en Durham[2].
Pendant presque quatre siècles, la petite communauté de clercs de saint Cuthbert, en dépit des invasions scandinaves, des guerres civiles, et des conquêtes anglo-saxonnes et normandes garde fidèlement la châsse du saint, essaie d'établir ses droits sur les nombreux villages et églises de ses domaines donnés par les rois et les grands propriétaires. Autour de cette communauté monastique se développe vite une agglomération avec un marché établi avant l'an 1100. Durham reçoit avant 1130 le statut juridique de bourg. Cette croissance rapide s'explique à la fois par le rôle ecclésiastique de la ville et par sa position stratégique, commandant tout le secteur oriental de la frontière avec l'Écosse[3].
La conquête normande

Après la conquête normande du Nord de l'Angleterre, l'évêque qui occupe le siège de Durham est déposé en 1069. Le chapitre de Durham est réorganisé par le premier évêque nommé par Guillaume le Conquérant, Guillaume Walcher qui reconstruit de fond en comble le logis monastique. Il est assassiné dans une insurrection locale brisée par une répression sauvage conduite par l'évêque Odon de Bayeux.
Dans la tradition saxonne, l'évêque doit être un moine qui partage avec les moines l'administration du diocèse. Le deuxième évêque Guillaume de Saint-Calais ancien abbé de l'abbaye Saint-Vincent du Mans nomme le prieur de Durham archidiacre[4]. En 1083, il regroupe à Durham les moines bénédictins de Wearmouth et Jarrow, et construit à cette communauté élargie un réfectoire plus vaste. Parallèlement, il prend les dispositions financière pour la construction de l'église assurée par les revenus de l'évêque, les moines prenant en charge leur logis[3].
Les premiers évêques de Durham doivent consolider l'organisation défensive de la région et construisent une première ligne de forteresses[3]. Ile deviennent princes-évêques de Durham et concentrent pouvoir spirituel et séculier. Gardiens du palatinat de Northumbrie ils doivent protéger la frontière anglo-écossaise avec leur armée privée, ont le droit de nommer leurs hommes dans les postes supérieurs, d'appliquer les lois de leur parlement et de percevoir l'impôt.
Le monastère
Vue du cloître sur la tour de la croisée du transept.
Vue du cloître sur la salle capitulaire.

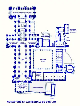
Le plan du monastère respecte la règle de Saint-Benoît avec l'obligation de la clôture monastique, l'organisation des bâtiments autour d'un cloître desservant le chœur eucharistique de la cathédrale, la salle capitulaire, lieu de réunion et de décision de la communauté qui se situe dans une salle qui donne sur l’ouverture du cloître monastique, pour que personne n'ignore une assemblée, des dortoirs proches du chœur pour les offices de nuit, le réfectoire…
L'aile est du cloître est la partie la plus ancienne, les moines construisant à partir du sanctuaire. Accroché sur le croisillon sud du transept, un passage du début du XIIe siècle et voûté en berceau mène au cimetière des moines et sert aussi de parloir.
L'imposante salle capitulaire à abside, achevée sous l'évêque Geoffroy le Roux avant 1140, a été partiellement démolie en 1796 et reconstruite en 1897. Son plan, antérieur au développement en Angleterre des salles à plan central inauguré à Worcester, est classique dans les abbayes bénédictines. C'est un rectangle de 23,50 m x 10,50 m sans support intermédiaire, terminé à l'est par une abside éclairée par cinq fenêtres, voûtée par quatre ogives, décorée de chevrons retombant sur des corbeaux sculptés. Seule survit la porte ouest flanquée de baies géminées ornées de chevrons. La salle capitulaire abrite toujours les dalles funéraires des premiers évêques.
Puis, au sud de l'aile Est, un complexe de salles et d'escaliers menant jadis aux dortoirs remonte en partie à l'évêque Waucher, entre 1071 et 1080. L'aile se termine par l'hôtel du doyen qui a succédé au prieur.
Au sud du cloître et parallèle à l'église, le réfectoire, construit entre 1088 et 1091 avec des celliers en sous-sol pour le stockage du ravitaillement, est rebâti au XVIIe siècle pour y loger la bibliothèque. Une vaste cuisine sur plan central, rebâtie à la fin du XIVe siècle et prolongeant le type de celle de Glastonbury pour l'époque romane, complète l'aile sud.
L'aile ouest comprend au rez-de-chaussée une grande salle voûtée du XIIIe siècle. Les galeries romanes du cloître ont été remplacées à la fin du XIVe siècle } et au début XVe siècle. Celles du nord servaient de scriptorium et celles de l'ouest d'école monastique[3].
Dissolution
En 1538, la tombe de Saint Cuthbert est détruite par ordre du roi Henri VIII : le monastère et ses richesses passent sous son autorité. Le 31 décembre 1540, le monastère bénédictin de Durham est dissous et le dernier prieur, Hugh Witehead, devient le premier doyen du chapitre régulier de la cathédrale[5].
- La cathédrale
Vue générale.
La nef.
Le chevet.
Construction de la cathédrale


Dans les années qui précèdent la construction de la cathédrale de Durham, l'Angleterre a une extraordinaire activité d'architecture religieuse avec la construction des cathédrales de Canterbury par Lanfranc en 1070, puis Lincoln, Rochester, Winchester, Ely, Saint-Paul de Londres, Worcester, les abbatiales de Saint-Augustin de Canterbury, Saint-Alban, Bury-Saint-Edmunds, Gloucester, Saint-Marie d'York. Parmi ces églises, celles élevées le plus tôt sont, grâce au talent des maîtres maçons normands, les plus complets exemples du style en usage en Normandie, puis la conformité au style normand diminue. Le premier maître d'œuvre de Durham a une connaissance directe ou indirecte de l'abbaye de Jumièges. Le caractère sévèrement logique qu'il a donné à ses œuvres prouve qu'il est normand, mais il n'emploie pas le chapiteau à volute alors d'un usage général en Normandie : il se sert du chapiteau cubique inconnu de cette province. On peut penser qu'il a travaillé à quelques autres grandes églises d'Angleterre. Durham est l'exemple frappant de l'avance prise à la fin du XIe siècle par l'École normande[6].
Après la démolition, peu après 1091, de l'église construite par l'évêque Alduin un siècle plus tôt[6], la cathédrale actuelle est érigée par Guillaume de Saint-Calais, deuxième évêque de Durham et proche conseiller des premiers rois normands d'Angleterre, Guillaume le Conquérant et Guillaume le Roux. Il s'était fait en Northumbrie le protagoniste d'une renaissance religieuse basée sur la fusion des races.
La construction de la cathédrale, dont le souci dominant est de donner à l'Angleterre conquise, et plus spécialement à ce Nord toujours indocile, l'impression que le nouvel ordre des choses est définitif et infiniment supérieur aux réalisations anglo-saxonnes[3], commence en 1093 et s'étend jusqu'en 1104 : avec la translation des reliques et la consécration sont réalisés le chœur, le croisillon sud du transept en entier, mais sans les voûtes, le croisillon nord jusqu'au sommet de l'étage des tribunes et deux travées de la nef. De 1104 à la dédicace de 1133, le transept est terminé, ainsi que la nef entièrement voûtée. L'avant-nef est de 1175 et les tours de l'ouest sont terminées en 1226. Le chœur est profondément remanié à l'époque gothique et la tour de la croisée du transept, endommagée par la foudre, est reconstruite entre 1470 et 1490[1].
En 1153, l'évêque Hugues de Puiset, apparenté à la dynastie royale, veut agrandir le chœur, mais son projet n'aboutit pas. Il construit vers 1170 à l'autre extrémité ouest de la cathédrale, dans l'espace disponible entre les tours et l'abrupt de la falaise, un narthex nommé la galilée, destiné en principe à accueillir les femmes, où l'on transfère en 1370 les reliques de Bède le Vénérable. Vers 1235, une indulgence est accordée à ceux qui contribuent à la reconstruction du chevet roman quasiment en ruine. En 1242, l'abside romane est démolie, sous la direction de Richard de Farnham, le chœur est prolongé par une travée gothique et par la chapelle des Neuf Autels qui forme presque un sanctuaire à part, où les nombreux moines prêtres peuvent célébrer l'office divin. Il offre à la cathédrale un chevet plat orné d'une rosace.
Vers 1360, on perce de grandes baies dans le croisillon nord du transept et le pignon ouest de la nef ; en 1429-1435, la galilée est restaurée ; la tour romane centrale est reconstruite de 1465 à 1490 environ, après les incendies de 1429 et 1459.
Après la dissolution du monastère en 1540 et les bénédictins remplacés par un chapitre de chanoines, les flèches couvertes de plomb sont démolies au milieu du XVIIe siècle. En 1775-1795, James Wyat entreprend une restauration générale de la cathédrale qui affecte surtout les tours ouest, le côté nord et le chevet. En 1859 a lieu une nouvelle restauration de la tour centrale et, de 1870 à 1876, la restauration générale de George Gilbert Scott affecte surtout le côté sud de la nef[3].
Description
Plan
Plan primitif avec le chevet roman et plan avec la galilée et les Neuf Autels.
Coupe transversale de la nef vers l'est.
Coupe longitudinale.
Coupe sur les Neuf Autels.
La cathédrale reprend le plan bénédictin à transept saillant et comme à l'abbatiale Notre-Dame de l'abbaye de Jumièges et l'architecture du XIe siècle le principe normand de l'alternance, le rythme d'une succession dans les colonnes de temps faibles et forts, des colonnes, puis des piliers renforcés de colonnes engagées. Trois de ces dernières montent jusqu'aux doubleaux[1]. On note des différences par rapport au prototype normand : la partie est après la croisée du transept comporte quatre travées contre deux en Normandie et une travée complète est intercalée entre le chœur et l'abside, ce qui accroît la profondeur des absidioles[6].
Les voûtes d'ogives

La cathédrale de Durham est considérée comme le chef-d'œuvre de l'École normande en Angleterre et c'est à ses voûtes que son majestueux intérieur doit son caractère monumental. La chronologie de ses voûtes est un élément important de l'histoire de l'édifice et est en relation avec une question plus générale: quelle part revient à l'École normande dans la solution du problème architectural consistant à couvrir de voûtes hautes une grande église pourvue de bas-côtés et d'un étage de fenêtres hautes.
Les voûtes au-dessus du chœur reconstruit au XIIIe siècle devaient être des voûtes sexpartites comme les bas-côtés du chœur mais ces voûtes comportaient des ogives pénétrantes et n'étaient donc pas de véritables voûtes d'ogives.
La première intention d'élever des voûtes hautes quadripartites semble s'être concrétisé dans le bras nord. Une grande voûte quadripartite a couvert les deux travées primitives, mais le système des voûtes juxtaposées a été repris près de la croisées du transept et dans la nef.
La première pierre de la cathédrale est posée le 11 août 1093. Les voûtes montées avant le 29 août 1104 se sont effondrées. Le voûtement daterait de 1108-1113, ensuite, le bras nord a reçu ses voûtes et la nef seulement en 1128-1133[7].
Ce mode de conception de la voûte qui va s'affiner en Île-de-France est le trait d'union entre d'une part l'arc de style roman qui a dominé le XIe et le XIIe siècle, et d'autre part l'ogive de style gothique qui va dominer l'Église catholique. Cette technique a révolutionné l'architecture des églises qui se sont allégées, perdant peu à peu le caractère massif de leur façade de pierres au profit d'ouvertures plus nombreuses. L'art gothique continuera sur la même lancée.
La cathédrale de Durham, en dépit de ses voûtes d'ogives reste un édifice pleinement roman, annonçant, par sa richesse plastique et sa volonté d'ornement la phase finale du style roman[1].
- Entrée principale sur la façade nord.
Façade nord et tour du transept.
Façade ouest.
Nef

Les grosses piles cylindriques sont couvertes de losanges, de fines cannelures et de chevrons habilement incisés, gagnant même les arcades, les doubleaux et les ogives. Ces qualités remontent très loin dans l'histoire de l'architecture saxonne et peuvent correspondre à une forme de réponse de l'Angleterre à ses premiers contacts avec le Continent[1].
L'élévation où les lignes verticales ont tendance à l'emporter sur les horizontales avec une division des travées renforcée, est à trois étages avec de grandes tribunes voûtées en quart de cercle, dont les baies sont recoupées par une colonne intermédiaire, des fenêtres hautes desservies par une circulation[1].
Chœur
Les arcatures entre-croisées du bas-côté du chœur offrent d'intéressants exemples du développement du chapiteau à godrons que l'on peut dater exactement de 1093 à 1096. Les colonnes jumelles ont des chapiteaux variés, parfois le même tailloir réunit le chapiteau cubique à chacune d'elles ce qui donne l'aspect d'un chapiteau à godron rudimentaire et pour d'autres, trois ou quatre demi-cercles les couronnent[8].
Cloître, cimetière
Le cloître.
La galerie du cloître.- Le cimetière.
Dimensions
- Longueur totale de la cathédrale d'est en ouest = 125 m ;
- Longueur de la nef = 73 m ;
- Longueur du chœur = 35, 66 m ;
- Longueur du transept du nord au sud = 51,80 m ;
- Hauteur de la tour de la croisée du transept = 64,60 m ;
- Hauteur des tours ouest = 43, 50 m ;
- Largeur totale de la nef et des bas-côtés = 24,40 m ;
- Largeur du chœur = 10 m ;
- Chapelle dite "galilée" = 15,20 m x 23, 80 m ;
- Cloître = 44,20 m x 44,20 m ;
- La chapelle des neuf autels = 42 m x 11, 60 m[9]. L'épaisseur normale des murs de la nef et des piliers= 2,13[6].
Les reliques de saint Cuthbert
Les restes de saint Cuthbert, évêque de Lindisfarne sont placés en 698, onze ans après sa mort, dans un coffret de bois exhumé en 1542, puis en 1827 du sol de la cathédrale de Durham. Sur les fragments existants, on voit une décoration gravée: sur le couvercle, le Christ entouré des symboles des quatre évangélistes et sur les côtés, la Vierge et l'enfant, les douze apôtres et sept archanges.
C'est un témoignage de l'art chrétien de Northumbrie du VIIe siècle, les personnages représentés sont choisis en vertu du pouvoir magique qu'on leur accorde et qui doivent protéger la dépouille. Les apôtres sont représentés dans l'ordre des canons de la messe. Ces modèles iconographiques d'origine méditerranéennes sont tracés par des graveurs maîtrisant les représentations ornementales et les runes qu'ils ont utilisées pour le nom des évangélistes
Ce cercueil avec l'Évangéliaire de Durham sont des témoignages de la transformation culturelle du Nord de l'Angleterre par les influences méditerranéennes et de Rome apportées par le christianisme[10].
Parmi les autres reliques attribuées à saint Cuthbert, on trouve une croix pectorale qui est un bijou celte en or cloisonné et grenats de la deuxième moitié du VIIe siècle, l'évangéliaire avec sa belle reliure au décor de rinceaux ou repoussé daté entre le VIIe siècle et le IXe siècle, une étole et les manipules brochées, des tissus de soie imprimés au cavalier, deux soieries de Durham dont la plus belle est la Déesse de la nature et une soierie représentant des paons à deux têtes du XIIe siècle[11].
Manuscrits
La bibliothèque de la cathédrale de Durham comprend dans sa collection de manuscrits 360 volumes en latin, grec, vieux, moyen et anglais moderne, et français anglo-normand issus pour la plus grande part de la bibliothèque médiévale du monastère bénédictin avec des livres vénérables très anciens, les Pères de l'Église utilisés pour la lecture quotidienne, des textes théologiques reflétant les tendances intellectuelles, et, plus tard, l'interaction avec l'Université d'Oxford.
On y trouve un fragment des Maccabées d'origine italienne, un groupe de manuscrits normands du XIe siècle, des livres de droits médiévaux d'origine italienne et une Bible parisienne du XIIIe siècle.
Les plus anciens manuscrits appartenaient à l'abbaye de Lindisfarne et ont été apportés par la communauté transportant le corps de saint Cuthbert à Durham. Ces volumes avec ceux provenant probablement de Wearmouth et Jarrow forment le noyau de la bibliothèque. Puis, les bénédictins ont amassé une importante collection d'ouvrages pendant 450 ans, y compris par ceux écrits dans leur propre scriptorium.
Après la dissolution en 1539, le chapitre de la cathédrale a hérité de la bibliothèque qui a subi de graves pertes au XVIe siècle, y compris les Évangiles de Lindisfarne aujourd'hui à la British Library.
Sur les 481 volumes survivants de la bibliothèque de la cathédrale de Durham, 308 y sont encore[12].
- Les manuscrits


Cassiodore de Durham, milieu VIIIe siècle, Le Roi David musicien.
Orgue
Au XVIIe siècle, la cathédrale de Durham a un orgue Smith remplacé en 1876 par un Willis avec quelques tuyaux de la chapelle du château de Durham. En 1880, Harrison and Harrison travaillent sur l'orgue avec de nombreuses modifications. Il est remis à neuf en 1996. Le buffet est conçu par C. Hogson Fowler et décoré par Clayton and Bell en 1876[13],[14]
Liste d'organistes de la cathédrale :
1557 John Brimley • 1576 William Browne • 1588 Robert Masterman • 1594 William Smyth • 1599 William Browne • 1609 Edward Smyth • 1612 Mr Dodson • 1614 Richard Hutchinson • 1661 John Foster • 1677 Alexander Shaw • 1681 William Greggs • 1710 James Hesletine • 1763 Thomas Ebdon • 1811 Charles E. J. Clarke • 1813 William Henshaw • 1862 Philip Armes • 1907 Rev Arnold D. Culley • 1933 John Dykes Bower • 1936 Conrad Eden • 1974 Richard Hey Lioyd • 1985 James Lancelot
|
|
|
| |||||||||||||||||||||||||||||||||||||||||||||||||||||||||||||||||||||||||||||||||||||||||||||||||||||||||||||||||||||||||||||||
|
|
|
| |||||||||||||||||||||||||||||||||||||||||||||||||||||||||||||||||||||||||||||||||||||||||||||||||
Sépultures


- Guillaume de Saint-Calais, dans la salle capitulaire
- Ranulf Flambard, dans la salle capitulaire (ouverte en 1874)
- Geoffrey Rufus, dans la salle capitulaire (fouilles archéologiques du XIXe siècle)
- William of St. Barbara, dans la salle capitulaire (fouilles archéologiques du XIXe siècle)
- Robert Neville - Évêque de Durham, dans le bas-côté sud
- Walter of Kirkham, dans la salle capitulaire
- Robert Stitchill (son cœur uniquement)
- Robert of Holy Island, dans la salle capitulaire
- Antony Bek, Évêque de Durham
- Thomas Mangey, chanoine de Durham
- Thomas Sharp, Prieur, dans la galilée
- Thomas Mangey, dans l'est du transept
- Richard Kellaw, dans la salle capitulaire
- Thomas Langley, sa tombe condamne la grande porte ouest entrainant la construction de deux portes nord et sud
- James Pilkington, Évêque, derrière la tombe de l'évêque Beaumont, devant l'autel majeur
- Alfred Robert Tucker, à l'extérieur de la cathédrale[15]
Dans la culture
L'extérieur de la cathédrale ainsi que l'intérieur de la salle capitulaire ont servi pour le tournage des scènes au château de Poudlard des films Harry Potter.[réf. souhaitée]
La cathédrale joue un rôle dans plusieurs scènes de The Old Oak, film de 2023 réalisé par Ken Loach[16].
Notes et références
- 1 2 3 4 5 6 Marcel Durliat, L'art roman : Cathégrale de Durham, Lucien Mazenod, (ISBN 2-85088-012-4), p. 500.
- ↑ J. F. Gérard, Vues pittoresques des comtés de Westmorland, Cumberland, Durham, p. 10-11.
- 1 2 3 4 5 6 Lucien Musset, Angleterre romane : Cathédrale de Durham, t. 2, Saint-Léger-Vauban, Zodiaque, coll. « La nuit des temps », , 353 p. (ISBN 2-7369-0043-X), p. 95.
- ↑ William Aird et Chinall Marjorie, « St Cuthberg and the normans, the church of Durham », Cahier de civilisation médiévale, vol. 44, no 173, , p. 65-66.
- ↑ Stranks: Durham Cathédral.
- 1 2 3 4 John Bilson, « La cathédrale de Durham et la chronologie de ses voûtes », Bulletin monumental, vol. 89, .
- ↑ Anne Prache, « Les voûtes de la cathédrale de Durham », Bulletin monumental, vol. 142, no 2, , p. 196.
- ↑ John Bilson: Le chapiteau à godron en Angleterre dans: Congrès archéologique de France, LXXVe session tenue à Caen en 1908, tome II, éditeur: A. Picard, Paris, pages: 634.
- ↑ (en) James Raine, A brief account of Durham cathedral, Londres, .
- ↑ Yves Renouart, « The coffin of St Cuthbert, drown by D. Mc. Intyre, Introduction by E. Kitzinger, 1950 », Revue des études anciennes, vol. 34, no 1, , p. 208.
- ↑ Monique Toury, « The relies of Saint Cuthbert, studies by various authors, collected and edited with on introduction by C. P. Battiscombe », Bulletin monumental, vol. 115, no 1, , p. 76-78.
- ↑ Duram university - Duram Cathédral Library, Archives and Manuscrips collections.
- ↑ Détails de l'orgue du National Pipe Organregister.
- ↑ Plus d'informations sur Orgel.
- ↑ (en) « In Memoriam: Bishop Alfred Robert Tucker, June 19, 1914 », World Digital Library (consulté le ).
- ↑ (en-GB) Peter Bradshaw, « The Old Oak review – Ken Loach’s fierce final call for compassion and solidarity | Film | The Guardian », The Guardian, (consulté le ).
Annexes
Bibliographie
Par ordre chronologique de publication :
- (en) James Raine, A brief account of Durham cathedral, Londres, Nichols & Son, (lire en ligne)
- (en) Robert William Billings, Architectural illustration and description of the Cathedral Church at Durham, Londres, T. and W. Boone, (lire en ligne).
- John Bilson (trad. L. Serbat), « La cathédrale de Durham et la chronologie de ses voûtes », Bulletin monumental, t. 89, no 1, , p. 5-45 (lire en ligne), p. 209-255 (lire en ligne)
- Jean Bony, « Le premier projet de Durham, voutement durable ou voutement partiel », Urbanisme et Architecture, , p. 41-47
- Francis Salet, « Le voûtement de la cathédrale de Durham (compte-rendu) », Bulletin monumental, t. 116, no 1, , p. 60-62 (lire en ligne)
- Marcel Durliat, L'art roman : Cathégrale de Durham, Paris, Lucien Mazenod, , 614 p. (ISBN 2-85088-012-4), p. 500
- Anne Prache, « Les voûtes de la cathédrale de Durham », Bulletin monumental, vol. 142, no 2, , p. 196 (lire en ligne, consulté le )
- Lucien Musset, Angleterre romane : Cathédrale de Durham, t. 2, Saint-Léger-Vauban, Zodiaque, coll. « La nuit des temps », , 353 p. (ISBN 2-7369-0043-X), p. 95
Articles connexes
Liens externes
- Portail de l’architecture chrétienne
- Portail du protestantisme
- Portail de l'anglicanisme
- Portail du patrimoine mondial
- Portail de l’Angleterre
