Château de Méan

| Type | |
|---|---|
| Styles | |
| Construction |
- |
| Patrimonialité | |
| État de conservation |
abandonné (d) |
| Adresse | |
|---|---|
| Région historique |
| Coordonnées |
50° 39′ 06″ N, 5° 40′ 36″ E |
|---|

Le château de Méan est un ancien château de plaisance du début du XVIIIe siècle, aujourd'hui à l'abandon, ayant appartenu à la famille de Méan de Beaurieux.
Il est connu pour être le lieu de naissance de François-Antoine-Marie de Méan, dernier prince-évêque de la principauté de Liège.
Histoire
.jpg)
Construction
La construction du château est entamée au début du XVIIe siècle par l'érection d'un pavillon par Pierre de Méan, échevin de liège. La bâtisse actuelle est reconstruite à partir de 1719. La nouvelle construction forme alors, avec sa ferme attenante, un vaste quadrilatère.
A peine achevé, le château subira déjà le passage répété de troupes étrangères durant la guerre de Sept Ans (1741-1748). Un général anglais y séjournera en 1748.
En 1756, François-Antoine-Marie de Méan, dernier prince évêque de la principauté de Liège nait au château.
XIXe siècle
La famille de Méan fuit la Révolution en 1794 et le château est ensuite loué à la famille Pirquet. Pierre Pirquet, baron de Cesenatico, est un grand militaire et conseiller intime de l'Empereur d'Autriche, sa signature figure au bas de l'acte de mariage de Léopold II avec l'archiduchesse d'Autriche. Le souvenir de cette famille reste vivace durant des décennies chez les habitants du village au point de renommer leur résidence, le château Pirquet. Le caveau familial est adossé à la sacristie de l'église du village.
Au début du XXe siècle, la comtesse d'Oultremont de Duras née baronne de Copis, descendante de la famille Méan, donne en location le château à des religieuses venant de France (les moniales de la Sainte-Famille). Elles le transforment en maison de retraite pour religieuses. Trente religieuses décèdent au château et sont inhumées dans le cimetière paroissial de même que leur aumônier, le Père Aucheron. Elles le quittent en 1917 pour s'installer dans des communautés des environs.
XXe siècle
Le château est occupé par les Allemands durant la Première Guerre mondiale avant d'être remis en location. Les années 1930 voient la construction d'une caserne militaire au milieu de l'ancien parc.
Durant la Seconde Guerre mondiale, le château est réquisitionné et vidé de son contenu et de ses cheminées. Il abrite des familles déplacées jusqu'en 1961, date à laquelle, à l'exception de la ferme, il est progressivement abandonné.
En 1975, une proposition de classement du bien est acceptée par la commune de Saive mais est refusée par la province de Liège. Le ministère de la Défense décline également une offre d'achat du château. Le château est pourtant classé le 20 septembre 1977 (façades, toitures et la salle de bal).
En 1978, les pouvoirs publics s’inquiètent de l'état déplorable du bâtiment (surtout des risques qu'il fait courir aux passants de la rue Cahorday). Mais rien n'y fait et la toiture de la tour ouest s'effondre en juillet 1986[1].
Description

Aspect général et architecture
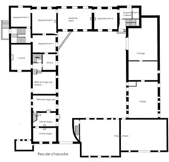
La totalité du bâtiment est en briques rouges à appareil anglais avec des encadrements de fenêtre et des angles harpés en pierre calcaire. Le corps de logis principal est flanqué de deux tours carrées, donnant sur les anciens jardins à la française au nord et sur la cour de ferme au sud[2].
Sur les jardins sont ouvertes sept travées dont les trois centrales sont légèrement en saillie et couronnées d'un imposant fronton semi circulaire monté sur volutes et décoré aux armoiries de Pierre de Méan et de Hélène-Jeanne de Waha. Une chapelle en encorbellement sur consoles et surmontée d'un garde-corps métallique est aménagée au premier étage de la travée centrale. La façade donnant sur la cour est constituée de six travées percées de baies à piedroits harpés encadrant une niche rocaille en pierre calcaire au rez-de-chaussée et un blason représentant les armoiries des familles de Méan et de Waha et daté de 1731 au premier étage. Au rez-de-chaussée des deux travées extrêmes sont aménagées des portes à encadrement cintré et couronnées d'un larmier droit à clé saillante[3].
L'ensemble, malgré des façades assez monumentales présente des circulations intérieures et extérieures atypiques et peu hiérarchisées. L'accès au château se fait par une porte cochère, peu différente de celle d'une ferme et la cage d'escalier principale est uniquement accessible après avoir traversé un appartement de parade[2].
Malgré un état global préoccupant, certains salons, inaccessibles pour des raisons de sécurité, conservent leur décor d'origine.
Les Délices du Pays de Liège
Entre 1739 et 1744, Pierre Lambert de Saumery publie Les Délices du Pays de Liège, œuvre dans laquelle le château est décrit comme suit :
- « La façade du côté du jardin présente d'abord un salon percé de trois arcades vitrées (ce salon possède notamment des lambris attribués à Walthère Damery), qui communique à des appartements à droite et à gauche. Un escalier carré à noyau vide conduit aux trois étages de cette maison. Au-dessus du premier salon est un ample vestibule qui distribue avec grâce et facilité l'entrée aux différents appartements. On y a ménagé une chapelle très propre et une enfilade terminée par deux balcons qui fait un effet des plus agréables. A l'étage supérieur se trouve un troisième salon terminé en dôme et destiné à un billard. un balcon y fournit un point de vue qu'on ne se lasse point d'admirer (...) Un jardin bien nivelé et fermé de murailles garnies d'espaliers des meilleurs fruits est à l'aspect de toutes les places principales de cette belle maison. Il est terminé par un petit bosquet de charmilles garni de marronniers d'Inde et coupé à pattes d'oie, à la pointe duquel est un octogone de maçonnerie qui forme un cabinet très propre. Une avenue de quatre rangées d'Ormes, et à laquelle la citadelle de Liège sert de perspective, conduit à cet agréable séjour. Un emplacement de vingt bonniers de prairies bien arborées accompagne ce château et la sépare de l'église paroissiale qui est très proprement ornée. »[4]
Galerie de photographies
Vue du corps de logis depuis la cour de la ferme.
Fronton aux armoiries des familles de Méan et de Waha.
Porte cochère menant à la cour.
Le château au début du XXe siècle.
La cour de ferme en 1943.
Les lambris attribuées à Walthère Damery du vestibule du rez de chaussée.
Les lambris attribuées à Walthère Damery du vestibule du rez de chaussée.
Plafond de l'ancienne cage d'escalier.
Notes et références
- ↑ « Le château des comtes de Méan », sur saive.be (consulté le )
- 1 2 Dominique de Smets, Historique, relevé et avant-projet de réaffectation du château des comtes de Méan., Liège,
- ↑ « Inventaire du Patrimoine Culturel Immobilier », sur spw.wallonie.be (consulté le )
- ↑ Pierre Lambert de Sauméry, Les délices du Pays de Liège,
Liens externes
- Ressource relative à l'architecture :
- Portail des châteaux
- Portail de la province de Liège