Léon Poussigue

| Naissance | |
|---|---|
| Décès |
(à 81 ans) Meschers-sur-Gironde |
| Nom dans la langue maternelle |
Poussigue |
| Nationalité | |
| Formation | |
| Activité |
| A travaillé pour |
Houillères de Ronchamp (à partir de ) Compagnie des mines d'Anzin ( - Schneider et Cie ( - |
|---|---|
| Alternative |
Portrait noir et blanc 3/4 de Léon Poussigue. |
| Distinction |

Léon Poussigue, né à Sommières le et mort le à Meschers-sur-Gironde est élève à l'école des mines de Saint-Étienne, puis exerce la fonction de directeur des mines de Bélmez dans les années 1880. Il demande le poste de directeur des mines de Ronchamp à l'âge de 32 ans, en 1891. Il est le créateur du puits Arthur-de-Buyer, premier puits de mine à avoir dépassé les 1 000 mètres de profondeur en France et en partie de la centrale thermique de Ronchamp. Il est également inventeur d'un appareil mesurant le grisou, Chevalier de la Légion d'honneur et médaillé d'or à l'exposition universelle de 1900.
Biographie
Léon Poussigue est né le à Sommières dans le département du Gard en région Occitanie[1]. Il réalise ses études à l'école des mines de Saint-Étienne entre 1876 et 1878 où il est classé premier à l'entrée et à la sortie[1]. Il devient ingénieur des mines de Roche-la-Molière et Firminy dans le bassin houiller de la Loire en 1880, puis ingénieur divisionnaire des établissements Schneider entre 1881 et 1887, puis ingénieur divisionnaire de la compagnie des mines d'Anzin pendant un an et enfin ingénieur-directeur des mines de Bélmez en 1887. Il devient ensuite ingénieur-directeur des houillères de Ronchamp entre 1891 et 1919 puis ingénieur conseil. Le , il est nommé Chevalier de la Légion d'honneur par le ministre des travaux publics, des postes et des télégraphes[1]. Léon Poussigue est également l’inventeur d'un appareil permettant d'analyser l'air des chantiers miniers et d'en connaitre la teneur en grisou[1]. Il meurt le dans la ville Meschers-sur-Gironde âgé de 81 ans[2],[3].
Houillères de Ronchamp
Directeur-ingénieur
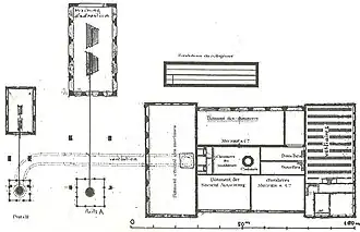
Arrivé à la direction des houillères de Ronchamp en 1891, il se voit offrir un salaire de 12 000 francs par an avec une prime de 1,5 % puis 3 % sur les bénéfices de l'entreprise. Il est logé au château de la Houillère[4],[3] et il lui est attaché un jardinier et un cocher, puis un chauffeur qui conduit la première automobile de l'entreprise en 1900, une Peugeot Victoria[2]. Il participe à la conception de la centrale thermique de Ronchamp[1]. Il est surtout le créateur du puits Arthur-de-Buyer, premier puits à avoir dépassé la profondeur de 1 000 mètres en France. Il en est l'unique concepteur, il dessine les bâtiments, dirige les travaux de creusement et décide de l'installation des différentes machines[2],[5],[6]. Dans sa fonction de directeur, il influe sur la décision d’investir de grosses sommes dans ce puits no 11[2],[7].
Plan du puits Arthur-de-Buyer réalisé par Léon Poussigue.
Autre plan des mêmes bâtiments.
Le puits Arthur-de-Buyer en activité.
Le château de la Houillère a longtemps été la résidence de Léon Poussigue.
Léon Poussigue possède un caractère plus souple et une autorité plus compréhensive que son prédécesseur Monsieur de Goumoens. Il a « La volonté d'humaniser les relations entre la compagnie et les ouvriers, de prévenir en particulier les réclamations estimées légitimes »[2],[3]. Ainsi en 1905, il accorde des augmentations de salaire avant toute revendication, « justifié par la situation commerciale ». Il sait malgré tout rester intransigeant et défendre les intérêts de la société, les 65 jours de grève de 1910, ne le font pas fléchir et il reçoit les félicitations du conseil d'administration[2],[8].
Ingénieur-conseil
Il devient ingénieur-conseil des houillères de Ronchamp en 1919, ce qui lui permet de continuer à participer au fonctionnement de la société des houillères. À sa mort en 1941, le conseil d'administration accorde une pension de retraite à sa veuve et une allocation renouvelable chaque année[2].
Récompenses
Au cours de sa carrière, Léon Poussigue a obtenu plusieurs récompenses[1]:
- diplôme d'honneur et médaille vermeil offerts par le préfet de la Haute-Saône en 1897 ;
- médaille d'or à l'exposition universelle de 1900 ;
- médaille d'or décernée par la société d'industrie minérale en 1904 ;
- Légion d'honneur en 1909.
Œuvre technique et mémoires
Léon Poussigue et l'auteur de trois ouvrages publiés par la société des houillères de Ronchamp[2],[7]:
Références
- 1 2 3 4 5 6 « Léon Poussigue », base Léonore, ministère français de la Culture.
- 1 2 3 4 5 6 7 8 Jean-Jacques Parietti 1999, p. 11.
- 1 2 3 Jean-Jacques Parietti 2001, p. 41.
- ↑ PNRBV, p. 21.
- ↑ Jean-Jacques Parietti 2010, p. 80.
- ↑ Jean-Jacques Parietti 2001, p. 52.
- 1 2 « Poussigue, Léon », sur WorldCat.
- ↑ Jean-Philippe Thiriet 2001, p. 29.
Voir aussi
Articles connexes
Liens externes
- Ressource relative à la vie publique :
Bibliographie
: document utilisé comme source pour la rédaction de cet article.
- Jean-Jacques Parietti, Les Houillères de Ronchamp vol. I : La mine, Vesoul, Éditions Comptoises, , 87 p. (ISBN 2-914425-08-2).

- Jean-Jacques Parietti, Les Houillères de Ronchamp vol. II : Les mineurs, Noidans-lès-Vesoul, fc culture & patrimoine, , 115 p. (ISBN 978-2-36230-001-1).

- Jean-Jacques Parietti, Les dossiers de la Houillère 2 : Le puits Arthur de Buyer, Association des amis du musée de la mine, (lire en ligne).

- Jean-Philippe Thiriet, Les Polonais dans les houillères de Ronchamp : 1919-1939, Salins-les-Bains/Ronchamp, Musées des techniques et cultures comtoises, , 77 p. (ISBN 2-911484-05-3).

- PNRBV, Le charbon de Ronchamp, Déchiffrer le patrimoine, Parc naturel régional des Ballons des Vosges (ISBN 978-2-910328-31-3 et 2-910328-31-7).

- Bassins houillers des Vosges et du Jura
- Portail de la production industrielle
- Portail des énergies fossiles