Maison d'Auguste
| Maison d'Auguste | ||
Fresque murale de la « salle des Masques ». | ||
| Lieu de construction | Regio X Palatium Palatin |
|
|---|---|---|
| Date de construction | À partir de | |
| Ordonné par | Auguste | |
Le plan de Rome ci-dessous est intemporel.
|
||
| Coordonnées | 41° 53′ 18″ nord, 12° 29′ 13″ est | |
| Liste des monuments de la Rome antique | ||
La maison d'Auguste (en latin : Domus Augusti) est la résidence de l'empereur Auguste qu'il occupe tout au long de son règne, bâtie sur le versant sud-ouest du Palatin.
Localisation
La maison d'Auguste est établie sur le Palatin qui, étroitement associé aux origines de Rome, est devenu un quartier résidentiel très recherché[1]. Elle se trouve à l'ouest du temple d'Apollon, entre ce dernier et les Scalae Caci[2]. Le temple d'Apollon est initialement construit dans la zone privée de la résidence avant qu'Auguste n'en fasse don à l'État. Le choix d'Auguste de s'installer sur le Palatin est décisif pour l'évolution de la colline. Il devient naturel pour la plupart de ses successeurs de s'installer également sur le Palatin, transformant peu à peu la colline en un immense complexe palatial. De plus, en choisissant de vivre près de la localisation légendaire de la hutte de Romulus et de la grotte du Lupercal, Auguste se crée un lien privilégié avec le fondateur de Rome[1].
Histoire
Antiquité
Peu après son retour de Sicile, vers , Octavien décide d'acquérir la maison de Quintus Hortensius Ortalo sur le Palatin[1], près de l'endroit où il est né, pour en faire sa résidence principale[3]. Les dimensions relativement modestes de la maison symbolisent la volonté d'Auguste de raviver les principes traditionnels, attitude qu'il promeut tout au long de son règne[a 1].
À partir de , Auguste agrandit sa maison en rachetant les propriétés contiguës qu'il affecte à des services publics[1],[a 2]. L'une de ces domus est réaménagée en maison dite « de Livie », sorte de dépendance qu'il octroie à sa femme et qu'elle occupe encore après la mort de son époux[4]. C'est à cette même époque qu'Auguste promet d'élever un temple dédié à Apollon[1].
En , l'entrée de la domus est décorée de deux lauriers, d'une couronne civique placée sur le fronton et de l'inscription « père de la patrie », entraînant la sacralisation de la demeure qui est placée sur le même plan qu'un temple[5].
La mort de Lépide en permet à Auguste de devenir Pontifex maximus. Mais qui revêt cette fonction se doit de vivre in loco publico et devrait donc s'installer sur le Forum selon la tradition. Auguste contourne cette obligation en faisant passer le temple de Vesta sur le Palatin et conserve ainsi le complexe du Palatin comme demeure principale. Il fait don de la Domus Publica aux Vestales et rend publique une partie de sa domus[1],[a 3].
La maison est détruite par un incendie en 3 ap. J.-C. mais est rapidement reconstruite aux frais de l'État et par souscription. C'est peut-être à cette occasion que l'orientation de la domus est inversée[6]. Elle est restructurée afin d'être tournée vers le Forum et non plus vers le Circus Maximus[5]. La montée vers l'entrée principale du palais se fait dorénavant par le nord, depuis le Forum, en suivant le clivus Palatinus[7]. Elle devient plus tard propriété de l'État[8]. Elle est de nouveau détruite lors du grand incendie de 64.
Fouilles archéologiques
La maison de Livie est mise au jour en 1869 par l'archéologue italien Pietro Rosa[9]. Les fouilles de 1961, concernant la zone entre la maison d'Auguste et le temple d'Apollon Palatin, ont permis de définitivement identifier les ruines à la résidence de l'empereur.
Description
La Domus Augusti provient de la fusion de sept maisons républicaines, celles d'Hortensius à laquelle s'ajoutent six autres qu'Auguste rachète par la suite. La maison est étroitement liée à l'Area Apollinis attenante, avec le temple d'Apollon et le portique des Danaïdes. À la mort d'Auguste, le complexe s'étend sur près de 12 000 m². Son étendue et son luxe marquent les contemporains et deviennent un modèle pour les futurs palais, type architectural qui n'était pas clairement défini jusqu'à présent[10],[6].
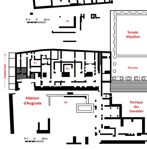
La maison d'Auguste

P1 et P2 : péristyles.
Pu : partie publique. Pr : partie privée.
La maison est construite sur deux étages, chacun s'ouvrant sur une cour aménagée en jardin. Celui du rez-de-chaussée est orné d'une fontaine. Le sol des pièces est couvert de dalles de marbres colorés. Les murs sont composés de blocs de tuf assemblés en opus quadratum. Les pièces se répartissent autour d'un atrium central. Toutes celles à l'ouest forment la partie privée de la domus, tandis que celles situées à l'est forment la partie publique (Domus publica). Cette division de la résidence impériale est conservée dans les plans des futurs palais impériaux.
La Domus Publica
L'aile est, réservée aux fonctions officielles, se compose d'une succession de salles à la décoration luxueuse, faite de marbre, de stucs et de peinture. Cette partie de la maison comprend la « salle aux murs noirs », la « bibliothèque occidentale », la « salle des perspectives » et la « salle aux colonnes »[n 1].
Les quartiers privés
Suétone décrit l'aile ouest de la domus ainsi :
« [...] elle n'était ni spacieuse ni ornée ; les galeries en étaient étroites et de pierre commune : ni marbre ni marqueterie dans les appartements. Il coucha pendant plus de quarante ans, hiver et été, dans la même chambre, et il passa toujours l'hiver à Rome, quoiqu'il eût éprouvé que l'air de la ville était contraire à sa santé, dans cette saison. Lorsqu'il avait quelque affaire secrète à traiter, ou qu'il voulait travailler sans être interrompu, il allait s'enfermer, tout en haut de sa maison, dans un cabinet qu'il appelait Syracuse ou son musée ; [...] »
— Suétone (traduction de T.Baudement, 1845), Vie des douze Césars, Auguste, LXXII
La décoration des pièces présente un réel contraste entre celles destinées à l'habitation et celles réservées aux fonctions officielles. Les pièces des quartiers privés sont décorées simplement, à l'exception de deux salles, contiguës, qui se démarquent par l'exubérance des fresques typiques du « deuxième style » : la « salle des masques » et la « salle des festons de pins ». Dans la première, les fresques représentent des motifs architecturaux complexes décorés de masques de théâtre posés sur une corniche peinte à mi-hauteur du mur. Dans la deuxième salle, des pommes de pin sont suspendues à des guirlandes végétales[11]. Le sol des pièces privées est revêtu de mosaïques aux motifs géométriques simples.
C'est également dans les quartiers privés que se trouvent les cabinets de travail de l'empereur (cubicula). Le cubiculum supérieur, baptisé « Syracuse » par Auguste, présente un schéma décoratif aux couleurs dominantes traditionnelles, (le rouge, le noir et le jaune) et aux motifs d'origine alexandrine (candélabres, cygnes, calices)[1]. Au plafond s'étend une décoration à fresques et à stucs[7]. Le cubiculum inférieur présente des murs peints en rouge comprenant des panneaux sur lesquelles figurent des scènes de paysages urbains. La partie supérieure des murs est ornée d'une frise continue formée de créatures marines[5].
Fresques de la « salle des festons de pin ».
Fresques du cubiculum supérieur, petit cabinet de travail d'Auguste.
Plafond décoré de la rampe d'accès entre la maison d'Auguste et le temple d'Apollon.
« Salle des perspectives ».
Cubiculum inférieur.
Le temple d'Apollon
En , Auguste décide de la construction d'un temple dédié à Apollon, intégré dans la partie privée de sa domus : le temple et la domus sont reliés par des passages couverts.
Péristyle nord
Entre la maison d'Auguste et la maison de Livie plus au nord s'étend un grand péristyle (P1) qui a été construit sur le sol orné de mosaïque d'une maison républicaine datant de la fin du IIe siècle av. J.-C. ou du début du Ier siècle av. J.-C. La reconstruction augustéenne a détruit une grande partie de l'ancienne domus mais a préservé certaines pièces. La maison devait contenir un petit bassin destiné à la pisciculture, l'un des plus anciens qui ait été découvert. Le luxe des mosaïques du sol suggère qu'il s'agissait d'une maison fréquentée appartenant à une personnalité influente. Cette maison a peut-être appartenu à Quintus Lutatius Catulus, consul avec Marius en 102 av. J.-C. On sait en effet qu'elle fait partie des maisons rachetées par Auguste[8].
La maison de Livie

E1 : entrée principale. E2 : entrée secondaire.
V : vestibule. Tr : triclinium. T : tablinum.
L1 et L2 : pièces latérales du tablinum. A : atrium.
Disposition des pièces
On accède à cette dépendance, située au nord de la domus principale, par un couloir en pente (E2) dont le sol est couvert d'une mosaïque où des tessons de couleur noire sont disposés en un motif régulier sur un fond blanc. Ce motif au sol se répète dans quasiment toute la maison. On pénètre ensuite dans une grande pièce rectangulaire (V), une sorte de vestibule, dont le plafond est soutenu par des piliers carrés. L'atrium a été construit dans la partie orientale de la maison (A) où on a retrouvé les traces de ce qui semble être un impluvium autour duquel s'ouvrent plusieurs petites pièces. Avant que la maison ne soit réaménagée, l'entrée principale (E1) devait communiquer avec l'atrium et s'ouvrir sur le côté est. Entre le vestibule et l'atrium, trois pièces rectangulaires devaient permettre de faire communiquer les deux parties de la maison. Celle au centre a été identifiée au tablinum. Elle est flanquée de deux pièces latérales qui ont conservé une bonne partie de leur décoration murale[12]. La salle assez large au sud-ouest de la maison est également décorée de fresque et a été baptisée le triclinium[13].
La disposition des pièces suggère que la maison a été remodelée après son achat par Auguste. Les vestiges de la maison républicaine datent de la première moitié du Ier siècle av. J.-C. alors que les modifications datent d'environ Un morceau de conduite d'eau, retrouvé à proximité des vestiges de la maison, porte gravée la mention « IVLIA AVG[VSTA] », ce qui a permis d'identifier les ruines avec la maison de Livie, épouse d'Auguste et première impératrice (augusta). Certains ont pensé à la fille de Tibère, Julia, mais cette hypothèse demeure minoritaire[13].
Maison de Livie vue depuis l'ouest. L'accès visible correspond à l'entrée secondaire E2.
Vestiges de l'atrium (A).
Fresques murales
Les trois pièces assez vastes situées au centre de la maison (le tablinum et les deux salles latérales) sont ornées de peintures murales relativement bien préservées. Dans le tablinum, la fresque murale est séparée en trois sections par les dessins en trompe-l’œil de colonnes corinthiennes qui soutiennent un plafond orné de coffres, disposition inspirée par les décorations des scènes de théâtre. Au centre de chaque section est représentée une grande porte. Sur celle au centre figure une scène mythique : Argus séquestre Io tandis que Mercure arrive pour la libérer. Dans l'ouverture des portes des sections latérales, en arrière-plan, apparaissent des monuments et des colonnes soutenant diverses statues. Des motifs décoratifs, parmi lesquels des sphinx, des divinités ailées, des grappes de raisin ou des bougies, sont répartis sur l'ensemble du mur[12].
Les fresques des murs de la pièce latérale sud (L2), et certainement celles de l'autre pièce latérale, sont moins complexes. La moitié inférieure des murs est ornée de guirlandes de fruits et de feuilles suspendues. Sur la moitié supérieure sont représentées des scènes de la vie quotidienne en Égypte sur un fond jaune[13].
Détail de la fresque du tablinum.
Détail de la partie inférieure des fresques d'une des pièces latérales (L2).
Notes et références
Notes
- ↑ Ces noms ont été donnés par les archéologues depuis le XIXe siècle en fonction des vestiges des décorations murales des salles découvertes.
Références
- Sources modernes :
- 1 2 3 4 5 6 7 Melmoth 2012, p. 12.
- ↑ Richardson 1992.
- ↑ Tomei 1998.
- ↑ Coarelli 2007, p. 142.
- 1 2 3 Melmoth 2012, p. 14.
- 1 2 Gros 2006.
- 1 2 Melmoth 2012, p. 15.
- 1 2 Platner et Ashby 1929, p. 156-157.
- ↑ Coarelli 2007, p. 138.
- ↑ Melmoth 2012, p. 13.
- ↑ Coarelli 2007, p. 141.
- 1 2 Coarelli 2007, p. 139.
- 1 2 3 Coarelli 2007, p. 140.
- Sources antiques :
- ↑ Suétone, Vie des douze Césars, Auguste, 72, 1-2
- ↑ Velleius Paterculus, Histoire romaine, 11, 8
- ↑ Ovide, Fastes, IV, 949-954
Bibliographie
Ouvrages généraux
- (en) Filippo Coarelli, Rome and environs : an archaeological guide, University of California Press, , 555 p. (ISBN 978-0-520-07961-8, lire en ligne)
- (en) M. A. Tomei, The Palatine, Milan, Electa,
- (en) Samuel Ball Platner et Thomas Ashby, A topographical dictionary of Ancient Rome, Londres, Oxford University Press, , 608 p.
- (en) Lawrence Richardson, A New Topographical Dictionary of Ancient Rome, Baltimore, (Md.), Johns Hopkins University Press, , 488 p. (ISBN 0-8018-4300-6)
- Françoise Melmoth, « Palais romains », L'Archéologue, Archéologie nouvelle, no 122, , p. 11-21
- Pierre Gros, L'architecture romaine : 2. Maisons, palais, villas et tombeaux, Paris, Picard,
Ouvrages sur la Maison d'Auguste
- (it) Patrizio Pensabene, Ricardo Mar et E. Gallocchio, « Scenografia architettonica e decorazione nella casa di Ottaviano sul Palatino », dans J. M. Álvarez, T. Nogales et I. Rodà (dir.), Proceedings XVIII International Congress of Classical Archaeology, vol. I, , p. 653-657
- (it) Andrea Carandini et Daniela Bruno, La casa di Augusto : Dai "Lupercalia" al Natale, Bari, Editori Laterza, , 304 p. (ISBN 978-88-420-8641-3)
Articles connexes
- Auguste, Livie
- Mont Palatin
- Area Apollinis et temple d'Apollon Palatin
- Palais impérial de Rome
- Domus Flavia
- Portail de la Rome antique
- Portail de l’archéologie
- Portail de Rome
- Portail de l’architecture et de l’urbanisme

