Winslow Hall

| Type | |
|---|---|
| Patrimonialité |
Monument classé de Grade I (d) () |
| Localisation |
|---|
| Coordonnées |
51° 56′ 29″ N, 0° 52′ 48″ O |
|---|

Winslow Hall est une maison de campagne, maintenant au centre de la petite ville de Winslow, Buckinghamshire, Angleterre. Construite en 1700, elle est située au centre de la ville, avec une façade face à l'autoroute et une façade sur un jardin de 22 acres (89 030,84124 m2) en 2007, en raison de l'achat progressif par William Lowndes d'un bloc de maisons et de jardins adjacents à partir de 1693 [1],[2]. L'architecte du manoir fait l'objet d'un débat, l'attribution à Sir Christopher Wren est incertaine.
Architecte

"Winslow Hall a été construit en 1700 par le secrétaire Lowndes ", affirme le Britannia Illustrata (1708) de Kip et Knyff, sans mentionner d'architecte. Winslow Hall est probablement conçu par Sir Christopher Wren, selon Howard Colvin[3], mais sans preuves. George Lipscomb est moins prudent : il note « l'édifice spacieux en briques simples avec une volée de plusieurs marches jusqu'à la porte au-dessus de laquelle se trouve la date de son érection 1700 et le nom de William Lowndes » et ajoute avec confiance, « pour qui il a été conçu par Inigo Jones " [4] . Inigo Jones est mort en 1652 et il est donc peu probable qu'il ait conçu Winslow. Pevsner estime également que la maison a été "toute probablement" conçue par Wren [5].
Sir Christopher Wren est tout à fait plausible - dans un registre découvert au début du XXe siècle détaillant les travaux sur la maison, éparpillés parmi les paiements effectués aux tailleurs de pierre et aux maçons, et pour la menuiserie à Matthew Banckes, se trouvent des modifications des paiements aux artisans, autorisées par 'St. Critophr Wren Surveior Gen' [sic]. Le livre de compte est complet et détaillé et pourtant n'enregistre aucun paiement à Sir Christopher Wren lui-même. William Lowndes (le propriétaire) et Wren se connaissent, ils ont siégé ensemble à un comité en 1704. All Souls College, Oxford possède une collection en trois volumes de dessins architecturaux de Wren, bien que la plupart se rapportent aux plans de la cathédrale Saint-Paul, il y a aussi des croquis et des plans pour ses bâtiments domestiques - il n'y a rien qui ressemble à Winslow Hall ou quoi que ce soit là-bas pour suggérer que Wren est l'architecte [6].
Le charpentier documenté à la maison est Matthew Banckes, qui est maître charpentier au bureau des travaux depuis 1683, et est maître de la Worshipful Company of Carpenters au moment de la construction de la maison. Banckes est souvent arpenteur des œuvres de Wren, notamment six des églises de la ville et à la bibliothèque du Trinity College de Cambridge.
Les cheminées du rez-de-chaussée ne sont plus d'origine, mais une pièce du premier étage conserve une cheminée d'angle d'origine. Les cheminées d'angle auraient été une caractéristique du travail domestique de Wren. Les quatre cheminées massives, dominant le manoir, ne se répètent sur aucune maison conçue par Wren.
Conception et motifs

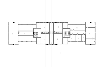
Le concept de design est une symétrie poussée à l'extrême. Le plan original de la maison est très simple, un bloc principal rectangulaire, haut de trois étages, long de 7 travées, large de 5 travées. Le corps central à trois travées est couronné sur les deux façades principales par un fronton percé d'une fenêtre ronde. La porte d'entrée centrale menait à un passage étroit de la largeur de la maison se terminant par une porte donnant sur le jardin à l'arrière. À droite sur le devant se trouvait la salle à manger, à gauche le vestibule. En passant le long du couloir, vers les jardins, se trouvaient à droite la bibliothèque et à gauche la salle de retrait. Placés symétriquement au centre de chaque mur d'extrémité de la maison se trouvaient des escaliers. Flanquant la maison se trouvaient deux ailes, à l'ouest une grande cuisine et une aile de service et à l'est reliées par un chemin couvert une brasserie et une buanderie. Ces deux ailes ont maintenant été modifiées et dans un cas supprimées. Les intérieurs de la maison ont également été modifiés au cours des siècles, mais il reste encore beaucoup de boiseries d'origine.
Le sud (entrée) fait face à la route principale A413 d'Aylesbury à Buckingham et est à quelques mètres et clairement visible de la route, ce qui est très rare dans une maison de campagne anglaise. William Lowndes achète sa maison d'origine en 1685, et acquiert progressivement les propriétés de ses voisins au cours des années 1690 et démolit des maisons de l'autre côté de la route pour améliorer la vue [7]. Par conséquent, Winslow Hall est presque unique en tant que ville et maison de campagne. Ainsi, il est encore plus remarquable qu'il ait survécu en grande partie inchangé, échappant à un usage institutionnel ou de bureau, et reste une maison habitée.
Propriétaires
La maison est occupée par William Lowndes et sa famille jusqu'à sa mort en 1724, et continue à être occupée par ses descendants jusqu'en 1848, date à laquelle elle devient l'école du Dr Lovell (anciennement située en Allemagne) [8]. Exceptionnellement, pour l'époque, l'internat est mixte, abritant 32 pensionnaires. L'école déménage à Aspley Guise en 1862. De 1865 à 1868, le docteur Théodore Boisragon utilise la maison comme asile privé pour aliénés [9]. Il est ensuite loué jusqu'à ce qu'il soit vendu au brigadier Norman McCorquodale en 1898. En 1942, le manoir est acheté par la société Northampton Glass Bottle, mais réquisitionné pour un usage de guerre, il devient les bureaux du RAF Bomber Command pour la durée de la Seconde Guerre mondiale, à la suite de quoi il est laissé en mauvais état.
La maison est classée comme bâtiment de catégorie I en 1946, mais est achetée par des entrepreneurs pour 8 000 £ en 1947 et, comme de nombreuses maisons de campagne, est menacée de démolition. Repéré, elle est rachetée par Geoffrey Houghton-Brown, et devient un lieu d'exposition d'antiquités [10]. La maison change de nouveau de mains en 1959 et est achetée par le diplomate Sir Edward Tomkins (en) qui restaure la maison et améliore le jardin à l'arrière (sud) en plantant des spécimens d'arbres et d'arbustes. Sir Edward met en vente Winslow Hall en mai 2007, quatre mois seulement avant sa mort.
Le contenu de la propriété est vendu aux enchères en avril 2009 et une journée portes ouvertes a eu lieu le 12 avril 2009 lorsque des objets plus petits sont proposés à la vente.
Winslow Hall est vendu le 30 juin 2010 aux nouveaux propriétaires, Christopher et Mardi Gilmour, fils et belle-fille du baron Gilmour [11],[12].
Références
- (en) Cet article est partiellement ou en totalité issu de l’article de Wikipédia en anglais intitulé « Winslow Hall » (voir la liste des auteurs).
- ↑ « Winslow Hall and the Lowndes family » (consulté le )
- ↑ « View of frankpledge and court baron, 17 April 1695 » (consulté le )
- ↑ Colvin 1995, s.v. Matthew Banckes, Sir Christopher Wren, based on material presented in The Wren Society, xvii, 54-75.
- ↑ George Lipscomb, The History and Antiquities of the County of Buckingham, J. & W. Robins, (lire en ligne)
- ↑ Pevsner, p 297
- ↑ Records of Buckinghamshire, p 407
- ↑ « Lowndes Roll 1 », Winslow History, (consulté le )
- ↑ « Dr Lovell's school at Winslow Hall », Winslow History, (consulté le )
- ↑ « Winslow Hall Asylum (1865-8) », Winslow History, (consulté le )
- ↑ « Winslow Hall for sale », Country life, (lire en ligne)
- ↑ « - », Buckingham and Winslow Advertiser, (lire en ligne)
- ↑ « - », London Evening Standard, (lire en ligne)
Notes et références
- Dossiers du Buckinghamshire, vol. XIm n° 7 ; publié par La Société, Aylesbury, 1926
- Colvin, Howard, Dictionnaire biographique des architectes britanniques, 1600-1840 3e éd. (New Haven : Yale University Press) 1995 : sv " Matthew Banckes", "Sir Christopher Wren"
Liens externes
- Ressource relative à l'architecture :
- Portail de l’Angleterre
- Portail de la protection du patrimoine